Revizní šachta VODALAND BASE 300 x 300 mm plastová s plastovým roštem 3D A15 50-160 mm černá
Kód: 8370-3385Související produkty
Detailní popis produktu
Revizní šachta VODALAND BASE 300 x 300 mm plastová s plastovým roštem 3D A15 50-160 mm černá
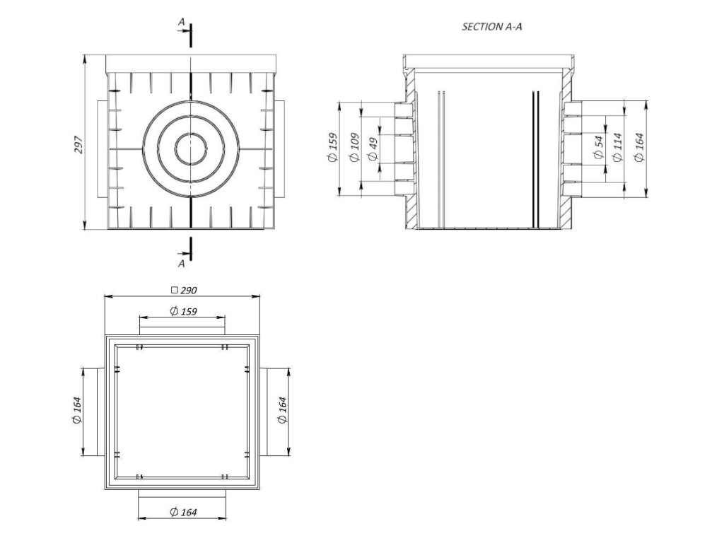
Revizní šachta VODALAND BASE, jinak zvaná dvorní vpusť, je vyrobená z velmi odolného polypropylenu a slouží pro spolehlivý a účinný sběr i odvod povrchové vody z ploch rodinných domů, chalup, chat, budov, dvorků, teras a zahrad do kanalizace nebo podzemní nádrže. Poskytuje vysokou mechanickou, chemickou a tepelnou odolnost, odolnost proti povětrnostním vlivům a UV záření, snadnou údržbu a instalaci a také dlouhou životnost. Na všech čtyřech vnějších stěnách šachty se nachází vtoky a odtoky o vnějších průměrech 50 mm, 110 mm a 160 mm pro napojení kanalizačních trubek, odpadních trubek nebo drenážních trubek. Horní část šachty je vybavena odnímatelným plastovým 3D roštem a obsahuje patřičné hrany pro nasazení přímo určeného nástavce, který umožňuje prodloužení šachty anebo alternativní zabudování jakéhokoliv roštu nebo poklopu o rozměru 300 x 300 mm k šachtě. Tento typ šachty lze využít jako čisticí, sběrný, spojovací, rozvodový nebo revizní prvek. Umožňuje efektivní odtok vody a pomocí speciálního 3D roštu, který rovněž plní funkci lapače střešních splavenin a nečistot, chrání stěnu budovy před stříkající vodou z okapu a pomáhá efektivně zabránit tvorbě vlhkosti, kaluží, stojatých vod, mechu a nepříjemných pachů.
Specifikace:
Podrobné technické informace k této revizní šachtě naleznete v technickém listu a technickém výkresu.
Instalace:
Podrobné informace k instalaci revizních šachet VODALAND naleznete v montážním návodu nebo montážním videu.
Vlastnosti:
- vybaveno plastovým 3D roštem
- obsahuje patřičné hrany pro nasazení nástavce
- spolehlivé odvodnění
- vysoká mechanická odolnost
- vysoká chemická odolnost
- vysoká tepelná odolnost
- odolnost proti povětrnostním vlivům
- odolnost proti UV záření
- snadná údržba
- snadná instalace
- dlouhá životnost
Využití:
- rodinné domy
- chalupy
- chaty
- budovy
- dvorky
- terasy
- zahrady
Technické parametry:
- délka šachty: 300 mm
- šířka šachty: 300 mm
- výška šachty: 300 mm
- rozměr šachty: 300 x 300 mm
- vnější průměr vtoků/odtoků: 50 mm, 110 mm, 160 mm
- hmotnost: 3 kg
- třída zatížení: A15 (1,5 t)
- barva: černá
- materiál: polypropylen
Doplňkové parametry
| Kategorie: | Dvorní revizní šachty s krytem |
|---|---|
| Barva: | Černá |
| Délka: | 300 mm |
| Materiál: | Polypropylen |
| Rozměr: | 300 x 300 mm |
| Šířka: | 300 mm |
| Třída zatížení: | A15 (1,5 t) |
| Typ: | Dvorní revizní šachty |
| Vnější průměr odtoku: | 50 mm, 110 mm, 160 mm |
| Vnější průměr vtoku: | 50 mm, 110 mm, 160 mm |
| Výška: | 500 mm |
| Hmotnost: | 3 kg |
Revizní šachta VODALAND - instalace do betonu
Revizní šachta VODALAND - instalace do půdy
Revizní šachta VODALAND BASE 300 x 300 mm s plastovým roštem 3D
Buďte první, kdo napíše příspěvek k této položce.
