Vnitřní dveře interiérové DOORNITE 145 cm GIGA dvoukřídlé
Kód: 100.101145GI-DV-Související produkty
Detailní popis produktu
Interiérové dveře dvoukřídlé DOORNITE GIGA plné moderního designu (š. 1450 mm)
Dveře dvoukřídlé kašírované se čtyřmi kazetami ve tvaru čtverce v postranní části křídla. Kazety mají výplň v dekoru dveři. Množství kašírovaných dekorů na výběr umožní zařídit jakýkoliv interiér k Vaši spokojenosti. Křídla dveří jsou potažené kašírovací fólii, při jejíž výrobě se používají ekologické barvy organického původu a dekorační papíry, které jsou po potisku na dveře dodatečně přelakované. Jako výplň je zde, nejběžněji využívaná, voština. Jedná se o tvrzený papír v několika vrstvách, uspořádaný do tvaru šestiúhelníku - včelí plástev o průměru 25 mm. Interiérové dveře se vyrábějí jak v jednokřídlé, tak i dvoukřídlé variantě, ve standardních šířkách jednokřídlých dveří 60 - 90 cm nebo 125 - 185 cm u dveří dvoukřídlých. Standardní výška dveří je 197 cm. Nezapomeňte si ke svým dveřím vybrat odpovídající obložkové zárubně.
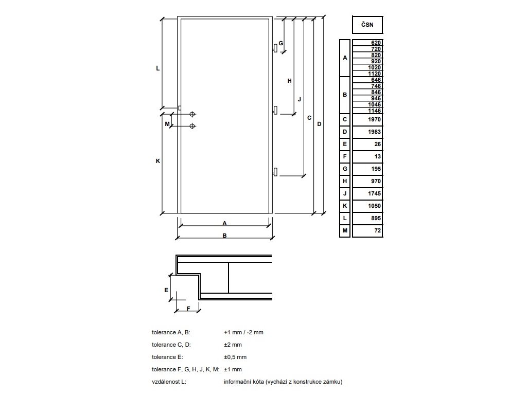
Technické parametry:
- Konstrukce dveří: MDF rám opláštěný HDF deskou - tloušťka 3mm.
- Povrchová úprava: kašírovací fólie.
- Výplň dveří: ztužená voština.
- Rozteč zámku: 72 mm.
- Dřevovláknité desky: tl. 39 mm.
PŘÍSLUŠENSTVÍ V CENĚ: dveře jsou opatřeny standardně mezipokojovým zámkem, třemi závěsy
Kašírované dekory: alpský ořech, borovice bělená, buk, dub, dub elegant, dub grand, dub ryflovaný, dub siena, dub sonoma, dub šedý, dub tmavý,olše, ořech rustikální.
! veškeré interiérové dveře - VÝROBA NA ZAKÁZKU!
Dostupné dekory kašírovací fólie


Doplňkové parametry
| Kategorie: | DVEŘE |
|---|---|
| Dekor: | Dekor dřeva |
| Počet v balení: | 1 ks |
| Povrch: | Kašírovaná fólie |
| Provedení: | Dvoukřídlé |
| Připravená rozteč zámku : | 72 mm |
| Šířka: | 1450 mm |
| Typ: | Dveře |
| Výplň: | Ztužená voština |
| Výška: | 1970 mm |
| Vlastní doprava: | 846 |
Diskuze
Buďte první, kdo napíše příspěvek k této položce.
